"To invest in the complete reform of a place where to develop the business of your dreams."
With such responsibility the project is addressed from the beginning.
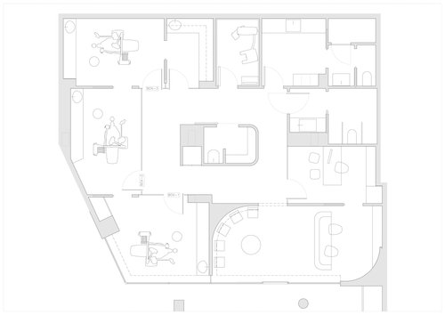
The space is located on the ground floor of a new residential building and in front of a high pedestrian traffic square. We prioritize to enhance the showcase of the dental clinic giving it prominence to attract customers.
As for the internal distribution, a circle is generated around a central module that subtly helps both to guide the patient by the appropriate route and to discreetly privatize certain spaces avoiding creating a ‘corridor effect’.
The abundance of the glass, the use of natural oak in the finishes, the dim and warm lighting, the generous height of the place, as well as the curved design in certain areas and the neutral chromatic range of soils, walls and doors; all these elements in harmony are aimed to soften the mood of the patient of the moment in which he accesses the dental clinic until he leaves it. Also, they give character and personality to the business.
Type: Business Integral Reformation
Client: Private
Team: Joan Salvadó, Santacreu Design
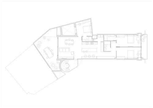
Obverse and Reverse are two projects on the same building intended to facilitate everyday life and promote a calm and awake perception of everything that happens in the inhabited space.
The structure disappears behind the furniture to achieve the pleasant feeling of spatial continuity. Indirect linear lighting, with that same objective, is integrated into ceilings and cabinets, as well as all the precise elements are designed for the same purpose.
The functional program is described from the central distributor, where the services, humid spaces and storage are located to free both sides of the house. This one, articulates two zones that open to each one of the facades. One of them, the day area, with the prominence of a terrace to which it extends, is very versatile and comfortably adaptable to the needs of each user.
In conclusion, an intervention with an austere and monochromatic finish that is presented naked, as a stage for life.
Type: Reformation Changing the Use
Client: Private
Team: Joan Salvadó, Laura Navarro
Obverse and Reverse are two projects on the same building intended to facilitate everyday life and promote a calm and awake perception of everything that happens in the inhabited space.
The structure disappears behind the furniture to achieve the pleasant feeling of spatial continuity. Indirect linear lighting, with that same objective, is integrated into ceilings and cabinets, as well as all the precise elements are designed for the same purpose.
The functional program is described from the central distributor, where the services, humid spaces and storage are located to free both sides of the house. This one, articulates two zones that open to each one of the facades. One of them, the day area, with the prominence of a terrace to which it extends, is very versatile and comfortably adaptable to the needs of each user.
In conclusion, an intervention with an austere and monochromatic finish that is presented naked, as a stage for life.
Type: Reformation Changing the Use
Client: Private
Team: Joan Salvadó, Laura Navarro
To reform a flat to rent with two objectives: to obtain the maximum number of rooms without losing spatial quality. Therefore, reducing transit spaces by increasing the surfaces of the utility spaces.
Thinking about the design of a flat in the widening of Barcelona for these purposes, means proposing a versatile and adaptable proposal to different user profiles. It is intended to enable three rooms served by kitchen and service, thus allowing multiple configuration options at the distribution level according to the needs of its residents.
Room uses according to the number of users:
1 o 2 – living room / double bedroom / dressing room-studio
3 – living groom / double bedroom / single bedroom
4 or more – double bedroom / double bedroom / single bedroom
Type: Housing Reformation
Client: Private
Team: Joan Salvadó
The owner of a commerce, in order to increase the value of his property and the possibilities of renting it, contacts us to transform it into a house at the ground floor. It is intervened with this objective.
Forty square meters squeezed to design an optimal and pleasant place. A rectangular plan project that is shown in its entirety from any point, with modest and integrated practicable compartments between the different rooms to take full advantage of the generous natural light that bathes the main facade of the building.
The purpose, to generate a space of a single environment, open and connected to increase the feeling of spaciousness given the pre-existing conditions. Access, kitchen, dining room, living room, distributor, storage and laundry in the same space from which you access the double room and the service (which hides a low staircase converted into a storage room).
Type: Reformation Changing the Use
Client: Private
Team: Joan Salvadó
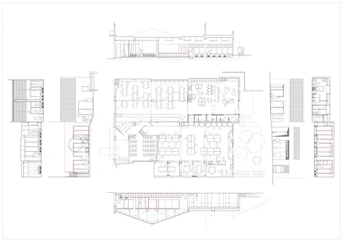
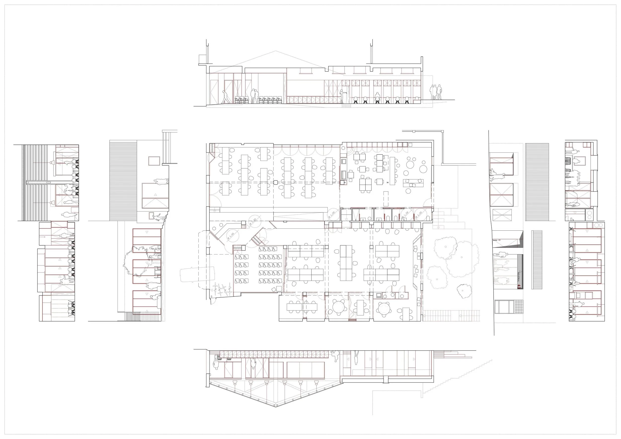
The client asks us to rehabilitate two adjacent warehouses to convert them into a co-working space.
We propose to connect them and position the different spaces of the program guided by the pre-existing conditions of the place.
The project starts from a central longitudinal strip that includes the main circulations and services to the different spaces. It connects the private areas with each other and these with the common rooms of the program. The design allows the client to distinguish the users in multiple ways and offer them services fully adjusted to their needs.
More than 500 m² equipped with:
'Fix' area - user with permanent table and chair
'Flex' area - common work area tables
Rooms Meetings / Teaching / Leisure
Type: Coworking Space
Client: Industrial43
Team: Marco Mosca, Joan Salvadó, Sergi Sauras
"How to display a collection of more than 100 different sunglasses presenting each one as an object of desire?"
We face the challenge of highlighting the VISIONARIO brand in one of the busiest shopping centers in Barcelona through an ephemeral pop-up store. The requirements of the client are demanding: it is necessary to exhibit the entire collection, of more than 100 different models, in an elegant space, with a breakthrough design, at the same time economical and easy to assemble and disassemble. To this we must add the height and visual impact limits imposed by each shopping center. Our proposal is born of converting these limitations into the strengths of our project.
A modular floor acts as support for more than one hundred backlit pedestals, on which each spectacle is presented as an object of desire, inviting the audience to interact with them. The pedestals are staggered generating a topography that seems to float lightly. The storage space is hidden behind a mirror, which accentuates the repetition of the structure creating a set of minimalist aesthetics that captures the attention of anyone.
Type: Pop-up Store
Client: Visionario eyewear
Team: Marco Mosca, Joan Salvadó, Sergi Sauras
Photography: Marco Mosca
Collaboration: Valentina Cabanzo, Carlota Puigrefagut
With the aim of creating an experience that expresses the essence of the brand, we propose “an explosion of color that captures the youthful and irreverent essence presented in a careful and elegant way”. We believe that the young watch brand NAAK groups these apparently opposite concepts. in a single product and that the stand must communicate these values to the public.
In White Summer and Sitges Market, two well-known fashion summer markets of the Mediterranean coast, more than a hundred colored ropes, transform the NAAK tent into a new space that invites visitors to come and discover the new collection of brand products.
The result: singular, aesthetically simple, precise execution.
Type: Pop-up Store
Client: Naak Time
Team: Marco Mosca, Joan Salvadó, Sergi Sauras
Photography: Marco Mosca
The project not only describes a building for the fishermen of Palamós but also the extension of this one, an urban intervention that integrates in the municipality a new equipment.
A route that connects functionally and actively through specific interventions different points of the urban network (up to the lighthouse of Palamós) generating spaces that combine, especially during peak season, with the activities to be carried out in the new headquarters and its stores.
The answer to the challenge of fitting a project before the topographical complexity of the area and giving meaning to the pedestrian routes that are generated to their environment, given the particular morphology of the plot and the visual quality of the place.
The purity of the formal aspect of the result facilitates a spatial reconfiguration of the interior if the need for the use of the building requires it in the future.
Type: Social Club & Urban Intervention
Client: Ajuntament de Palamós
Team: Joan Salvadó
Unique elements,
"Part of the industrial heritage of our country. Authentic slender brick works of art that describe the history of a working society, not very far away. Protected pieces but abandoned in public places scattered everywhere.
Without any use, for many, a nuisance."
Behind the door his world happens,
"A living that only knows what is perceived from the place itself. Inside and outside. The mind moves the body through space, satisfying its physiological and existential needs. The only rules of coexistence are imposed by body and mind.
The inhabitant is a solitary character, a thinker who blows the mind without hardly moving from its place. An artist, a creator, someone who has everything he needs and does not need more than he has.
A wise man whose work will be recognized and admired after its end, in his absence."
Type: Academic
Client: Fundación Arquia
Team: Joan Salvadó
PUBLISHED PROJECT Spanish Pavilion - Biennal di Venezia 2018
http://www.b-e-c-o-m-i-n-g.com/
"The individual leaves his sensible world. Opens the hatch and descend the vertical ladder until he reach an isolated place where his knowledge will explore its limits through the exclusive use of reason.
He will be freed from the contamination he constantly receives from the media and the hegemonic opinions that shape his own, ethics and morals without realizing it.
It will undergo an individual and personal revolution. The place will allow him to move in that direction attending to his basic needs.
After his stay, after acquiring the authentic reality, he will return to the outside world and spread his knowledge, trying to make other individuals detach themselves from ignorance."
Type: Academic
Client: Fundación Arquia
Team: Joan Salvadó
The Spanish pavilion of the Biennale di Venezia offers its external adjoining space to execute and exhibit a project carried out by young architects.
Unbecoming is a reflection on the state of constant becoming (forever becoming) so characteristic of modern society, without a definite end.
An interactive experience in which visitors are the protagonists of a space that changes at every step. Their identity is deconstructed in infinite reflections that act as a canvas of the unlimited ways of understanding the place.
It is an exercise in reflection on the free space that each person perceives, interprets and enjoys in a unique way.
ref. Paul Apalkin
Type: Installation
Client: Biennale di Venezia Spanish Pavilion
Team: Marco Mosca, Joan Salvadó, Sergi Sauras